Leave a Message

By providing your contact information to Jimy Black, your personal information will be processed in accordance with Jimy Black's Privacy Policy. By checking the box(es) below, you consent to receive communications regarding your real estate inquiries and related marketing and promotional updates in the manner selected by you. For SMS text messages, message frequency varies. Message and data rates may apply. You may opt out of receiving further communications from Jimy Black at any time. To opt out of receiving SMS text messages, reply STOP to unsubscribe.

Thank you for your message. We will be in touch with you shortly.

Explore Our Properties

Property Description

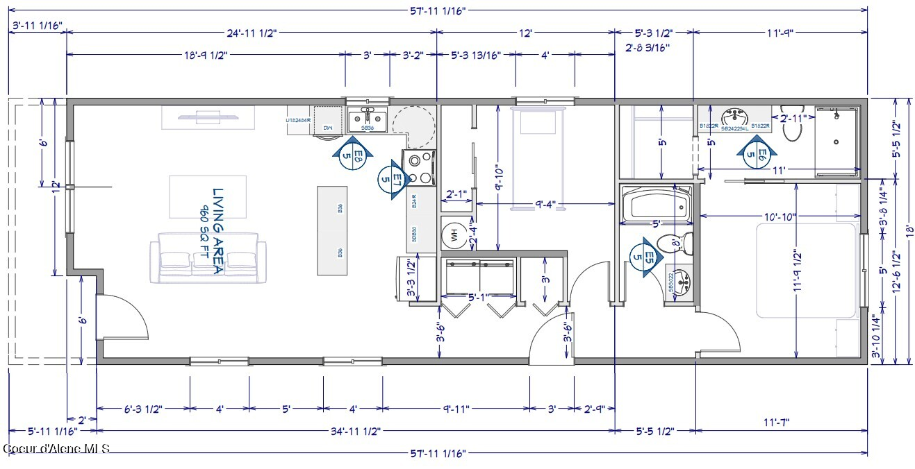
Charming 2-bedroom, 2-bath cottage nestled in a peaceful neighborhood near the Elks Golf Course, Sandcreek Trails, and the shores of Lake Pend Oreille. Just 5 minutes from downtown Sandpoint and 25 minutes to Schweitzer Mountain Resort, this thoughtfully designed home offers the perfect blend of comfort and convenience to recreation. Enjoy 9' ceilings, abundant natural light, and stylish quartz countertops throughout. The open-concept layout provides a bright and welcoming feel with form and function. Step outside to access a scenic walking trail system or relax in the tranquility of the quiet surroundings. A 1-car garage adds functionality and storage. This is North Idaho living at its finest -- close to everything yet tucked away in a serene setting.*Home to be completed end of August*

Overview

Property Status
Sold
Lot Size
3,484.8 Sq.Ft.
MLS ID
25-7207
Property Type
Residential
Year Built
2025

Features & Amenities

Total Area
960 Sq.Ft.
View Description
Mountain(s), Territorial
Water Source
Public
Roof
Composition
Lot Features
Level, Cul-De-Sac
Heat Type
Cadet, Electric, See Remarks
Appliances
Electric Range, Refrigerator, Microwave, Disposal, Dishwasher
Other Interior Features
High Speed Internet
Sewer
Public Sewer
Substructure
Concrete Perimeter
Other Exterior Features
See Remarks
School District
Lk Pend Oreille - 84
Price Upon Request
Zoning
Residential

Downloads

349 Jasper Loop

Schedule a Tour

We would love to help you see this beautiful home! As a full-service brokerage, we can help you tour. Please submit an offer, and answer questions about the buying process.

Thank you

for your interest in 349 Jasper Loop, Ponderay, ID 83852

349 Jasper Loop
Navigate

I'm Interested In

349 Jasper Loop

or
  • CallJimy Black

    License #SP51139

    (208) 255-6207
  • Featured Properties

    • 55 S Thistle Down Ln, A For Sale

      $2,200,000

      55 S Thistle Down Ln, A, Laclede, ID 83841

      • 3 Beds
      • 3 Baths
      • 2,243 Sq.Ft.
    • 478338 Highway 95 N Pending

      $1,350,000

      478338 Highway 95 N, Ponderay, ID 83852

      • 5 Beds
      • 3 Baths
      • 3,380 Sq.Ft.
    • 478338 Highway 95 N Pending

      $1,350,000

      478338 Highway 95 N, Ponderay, ID 83852

      • 9,300 Sq.Ft.
    • 477545 US-95 For Sale

      $1,300,000

      477545 US-95, Ponderay, ID 83852

    • 477545 US-95 For Sale

      $1,300,000

      477545 US-95, Ponderay, ID 83852

    • 231 S 4th Ave For Sale

      $750,000

      231 S 4th Ave, Sandpoint, ID 83864

      • 4 Beds
      • 3 Baths
      • 2,000 Sq.Ft.
    • 537 N Riley Creek RD Pending

      $700,000

      537 N Riley Creek RD, Laclede, ID 83841

      • 5 Beds
      • 2 Baths
      • 2,688 Sq.Ft.
    • 448 Holley Glen Rd For Sale

      $650,000

      448 Holley Glen Rd, Priest River, ID 83856

      • 3 Beds
      • 2 Baths
      • 1,840 Sq.Ft.
    • 154 Jazz Way For Sale

      $575,000

      154 Jazz Way, Laclede, ID 83841

      • 5 Beds
      • 3 Baths
      • 2,227 Sq.Ft.
    • 1215 Church St Pending

      $535,000

      1215 Church St, Sandpoint, ID 83864

      • 3 Beds
      • 2 Baths
      • 1,398 Sq.Ft.
    • 537 N Riley Creek RD Pending

      $515,000

      537 N Riley Creek RD, Laclede, ID 83841

      • 5 Beds
      • 2 Baths
      • 2,688 Sq.Ft.
    • 230 Ash St Pending

      $415,000

      230 Ash St, Ponderay, ID 83852

      • 5 Beds
      • 2 Baths
      • 1,920 Sq.Ft.
    • 430 1st St For Sale

      $415,000

      430 1st St, Priest River, ID 83856

      • 3 Beds
      • 2 Baths
      • 2,494 Sq.Ft.
    • 375 Jasper Loop For Sale

      $395,000

      375 Jasper Loop, Ponderay, ID 83852

      • 2 Beds
      • 2 Baths
      • 972 Sq.Ft.
    • 632 Cascade For Sale

      $300,000

      632 Cascade, Naples, ID 83847

    • 150 Ranch Road For Sale

      $229,500

      150 Ranch Road, Naples, ID 83847

    • NKA N Riley Creek RD For Sale

      $200,000

      NKA N Riley Creek RD, Laclede, ID 83841

    • NNA Dixon Street For Sale

      $129,000

      NNA Dixon Street, Priest River, ID 83856

    View All

    Follow Us On Instagram